投加系统给料机的概述
新闻来源:山东智信环保 发布时间:2016-03-17 09:12 点击:次
在安装和使用给料机之前请阅读所有的指导说明,遵照使用说明会确保长期无故障地运行。 我们很抱歉对不遵照使用说明的操作不能提供担保。

1. 描述
1.1 综述
这份说明详尽描述了给料机的操作和维护。 给料机用于固体物料的体积计量。这里所说的固体物料指的就是后面提到的化学品。 给料机是为一定体积重量的化学品设计的,(参见第 7 节)。

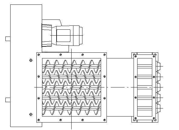
图 1. 给料机的外形图
1. 驱动单元 4. 给料机螺旋 7. 轴密封
2. 传动部分 5. 检查口 8. 轴承
3. 进料口法兰 6. 出料口法兰 9. 透明盖
给料机有至少两个共同旋转的给料螺旋组成,一个左旋,另一个右旋。 螺旋旋转方向相反以 在螺旋之间形成一个物料通道。这个特点能确保精确的体积计量,而且螺旋自身也成为自净式 螺旋。 同时,它还有一个优点就是确保位于给料机之上的料仓里的物料能够充满整个给料机 的入口宽度而均匀地喂料 (因此而降低了物料在料仓内架桥的风险)。所以,每一转都会给出等 量的物料。
在即将进入给料机出口之前,螺旋将物料穿过出口管。给料机的轴配有曲形密封(参见说明)以防止轴承跟物料接触。球形轴承用在轴的两个末端,参见说明 。
给料机装配有完整的驱动系统,包括电机和齿轮箱。 如果想了解电机和齿轮箱的详细操作和维护说明,请参见第 7 节中来自制造商的指导说明。
上一篇:你家喝的水安全吗?你知道自来水厂的水处理工艺吗?
下一篇:投加系统给料机的概述(二)